Дорнмас

Дорнмас

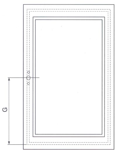
Расстояние от фальца створки до центра отверстия по ручку.

Поиск: Дорнмас

blog comments powered by Disqus

Другие определения

Полированное стекло

Полированное стекло

Листовое стекло с высоким качеством отделки поверхности полированием различными технологическими методами.

Коррозия

Коррозия

Это самопроизвольное разрушение металлов в результате химического или физико-химического взаимодействия с окружающей средой.

Флоат-стекло

Флоат-стекло

Листовое стекло, отличающееся высокими оптическими характеристиками, исключающими искажение изображения. Данное стекло производится флоат-методом, заключающимся в горизонтальном выпуске стекла на расплаве металла.